
Di artikel kali ini darsitek ingin membagikan Referensi Gambar Atap dan Kuda-Kuda Baja Ringan Dalam Bentuk DWG (File AutoCAD), dikarenakan sebelumnya ada yang merequest tentang kuda-kuda baja ringan, kali ini saya akan membagikan referensi kuda-kuda baja ringan untuk kalian semua. Namun, sebelum itu kita harus tau dulu apa itu kuda-kuda baja ringan?
Pengertian Kuda-kuda Baja Ringan
Kuda-kuda baja ringan merupakan salah satu baja yang mempunyai kualitas tinggi dan memiliki sifat yang tipis dan ringan, serta baja ringan mempunyai kekuatan yang tidak kalah dari baja konvensional.
Ketebalan baja ringan pada umumnya memiliki ketebalan 0,20 – 2,00 mm. Dalam menentukan ketebalan baja ringan itu sendiri harus berdasarkan variasi ketentuan fungsinya, apakah cocok digunakan pada beban yang akan di bebani baja ringan itu sendiri. Begitupula dalam hal mendesain rangka atap dengan baja ringan, para drafter tentunya sudah tahu desain-desain gambar kuda-kuda baja ringan tersebut, untuk yang masih latihan bisa mencoba melatih desain-desain sendiri di AutoCAD. Bagi anda yang ingin referensi detail kuda-kuda baja ringan, saya akan bagikan secara gratis dibawah ini. Download linknya dibawah ini.
Konfigurasi standar dari rangka atap dapat terdiri dari empat elemen utama, yaitu sebagai berikut:
- Kuda-Kuda, kuda-kuda merupakan struktur utama yang memikul semua beban dan elemen struktur lain pada rangka atap.
- Gording, gording adalah balok induk yang bertugas menahan elemen struktur yang berada di atasnya dan beban-beban yg bekerja di atas rangka atap.
- Kaso/Usuk, kaso adalah elemen yang bersilangan dengan gording dan dapat diangagp sebagai balok anak yang akan menyalurkan beban kepada gording.
- Reng, reng merupakan balok kecil yang digunakan sebagai dudukan genteng baik genteng beton maupun genteng metal.

Rangka atap baja ringan/galvalum mempunyai beberapa istilah umum sepeti terlihat pada gambar di bawah ini.

Fungsi Kuda-Kuda Baja Ringan
Berikut ada tiga fungsi utama dari kuda-kuda baja ringan, diantaranya :
- Kuda-kuda baja ringan sebagai penyalur gaya tekan.
- Ander atau tiang tengah kuda-kuda baja ringan berguna sebagai pendukung balok bubungan atau molo.
- Kuda-kuda baja ringan juga merupakan sebagai penahan gaya tarik pada balok dasar.
Bentuk Atap Standar
Susunan struktur rangka atap baja ringan/galvalum terpasang dalam arah yang sejajar pada jarak tertentu, susunan ini akan membentuk kontur atap atau bentuk yang direncanakan. Secara umum bentuk atap standar dari baja ringan terdiri dari:
1. Bentuk Atap Pelana
Bentuk atap ini hanya mempunyai kemiringan yang saling bertolak belakang, sementara pada sisi tegaknya tidak mempunyai kemiringan, bentuk pelana akan membentuk atap seperti prisma segitiga, pada umumnya hanya mempunyai satu jenis bentuk kuda-kuda berupa kuda-kuda standar atau dapat juga berupa kuda-kuda jenis scissors (dengan Bottom Chord mempunyai kemiringan yang sejajar atau lebih landai daripada Top Chord).

2. Bentuk Atap Perisai
Bentuk atap perisai akan mempunyai kemiringan baik dalam arah tegaknya maupun dalam arah lawannya. Pada arah yang saling bertolak belakang, kemiringan didapatkan dengan mengatur sudut dari Top Chord, sementara kemiringan dalam arah tegak akan didapat dengan mengatur tinggi kuda-kuda terpancung/truncated dengan ditambah dengan susunan-susunan rafter. Terdapat beberapa istilah rafter sesuai dengan letaknya seperti: Hip Rafter, Jack Rafter, dan Creeper Rafter.

Berbagai bentuk atap yang rumit akan merupakan susunan dari bentuk atap perisai dan bentuk atap pelana. Bentuk kuda-kuda yang menyusunnya akan beragam dapat berupa kuda-kuda standar, kuda-kuda terpancung, kuda-kuda scissors, kuda-kuda standar-terpancung, setengah kuda-kuda, setengah kuda-kuda terpancung, anak kuda-kuda, dan seterusnya.
Jarak Kuda-Kuda
Jarak kuda-kuda rangka atap untuk berbagai material akan berbeda-beda, hal ini dengan pertimbangan bahwa masing-masing bahan mempunyai keterbatasan dalam menahan beban luar secara elemen. Perkiraan jarak kuda-kuda untuk masing-masing material adalah:
1. Rangka atap baja konvesional
Rangka atap baja ringan mempunyai elemen lentur gording dari profil lipped channel dan elemen aksial dari profil siku maupun lipped channedl dengan ketebalan beragam di atas 3mm, sehingga jarak kuda-kuda bisa mencapai 6meter, dengan bentang kuda-kuda mencapai puluhan meter bahkan bisa sampai 50 meter lebih. Jadi rangka baja konvensinal akan cocok jika digunakan untuk bentang-bentang besar, dan tidak cocok untuk bentang kecil seperti rumah tinggal maupun bangunan gedung kantor, karena akan mempunyai berat bahan yang besar.
Untuk bangunan sederhana, rangka atap baja konvensional mempunyai berat sendiri sekitar 20kg/m2 – 25kg/m2.
2. Rangka atap kayu
Rangka atap mempunyai material yang solid dan kaku, namun keterbatasannya adalah pada potongan dari kayu utuh yang tidak bisa terlalu panjang, sehingga jarak kuda-kuda bisa mencapai sekitar 4meter. Rangka atap kayu dapat digunakan untuk bentang bentang kecil hingga menengah, semakin besar bentangnya, maka detail penyambungannya menjadi semakin rumit.
Namun kekurangan rangka kayu untuk rangka kayu untuk rangka atap adalah masalah pelapukan, tidak tahan rayap (perlu perawatan berkala untuk memberikan ketahanan pada rayap), merambatkan api, berat sendiri masih tinggi di kisaran 15kg/m2 – 18 kg/m2.
3. Rangka atap baja ringan /galvalum
Material baja ringan/galvalum mempunyai kekuatan dan kekakuan yang terbatas, namun akan efektif jika dipasangkan pada jarak tertentu. Umumnya profil reng dan ketebalannya yang menjadi batas dari bentangnya, secara aplikasi jarak kuda-kuda rangka atap baja ringan adalah 1.2 meter hingga 1.5 meter jika dibebani dengan genteng beton dengan menggunakan reng, dan dapat juga dengan jarak kuda-kuda 2 meter hingga 3 meter jika menggunakan gording untuk atap lembaran baik seng, asbes, maupun atap baja.
Cara Pemasangan Kuda-Kuda Baja Ringan
Setelah anda mengetahui apa itu fungsi dari kuda-kuda baja ringan, selanjutnya perlu anda ketahui adalah cara pemasangan dan mengukur kuda-kuda baja ringan yang tepat dan sesuai dengan standarisasi ilmu bangunan yang benar. Untuk lebih memudahkan, berikut darsitek akan membagikan beberapa saran yang harus diperhatikan sebelum pemasangan kuda-kuda baja ringan.
- Kuda-kuda baja ringan atau truss harus dilengkapi angkur pada kedua tumpuannya yang terpasang dengan kuat serta stabil.
- Kuda-kuda baja ringan mengarah pada ringbalk dalam posisi tegak lurus.
- Pemasangan nok dan apex di atas harus sama rata.
- Hindari Deformasi atau perubahan bentuk akibat kesalahan teknis pekerjaan.
- Cek lapisan pelindung baja, tidak boleh ada yang rusak.
- Sisi miring atap baja ringan harus rata tidak boleh bergelombang.
Setelah anda mengerti betul tentang kuda-kuda baja ringan, berikut darsitek akan berbagi beberapa cara mengatur jarak secara proporsional untuk pemasangan kuda-kuda baja ringan.
- Pengaturan dimensi reng atau biasa di istilahkan batten, jaraknya tidak boleh terlalu rapat atau renggang karena akan berpengaruh pada kuda-kuda, semakin besar dimensinya maka akan memperbesar jarak kuda kuda. Secara mendasar reng berguna untuk menahan beban tumpuan reng itu sendiri, penutup atap, beban angin serta beban pekerja saat proses pembangunan berjalan. Adapun perhitungan beban sejatinya adalah 1,6 beban hidup dan 1,2 untuk beban mati. Adapun jarak lendutan berkisar antara 1/300 L = jarak interval kuda-kuda tempat reng bertumpu.
- Jarak tumpuan kuda kuda adalah 25 m.
Pemasangan konstruksi rangka atap baja ringan
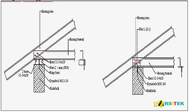
Pemasangan kuda-kuda baja ringan di atas kedua tumpuannya dapat dilakukan dengan dua cara, yaitu:
- Dipasang langsung di atas ringbalk.
- Dipasang di atas ringbalk dengan perantara wall-plate. Penggunaan sistem tumpuan dengan wall-plate sedapat mungkin harus dihindari, karena tumpuan dengan wall-plate hanya ditujukan untuk meratakan (leveling) ringbalk, jika ringbalk tidak rata. Penggunaan wall-plate akan berakibat kedalaman dynabolt yang tertanam di dalam ringbalk menjadi berkurang. Selain itu, juga terdapat ruang kosong di dalam wall-plate yang dapat mengakibatkan perletakan kuda-kuda menjadi kurang stabil.
Pemasangan konstruksi rangka atap baja ringan


Pemasangan kuda-kuda harus mengikuti beberapa langkah kerja sebagai berikut:
Langkah 1: Persiapan kerja
- Menyiapkan gambar rencana atap dan perletakkan kuda- kuda, dan tidak diperkenankan menggunakan gambar draft sebagai panduan.
- Menyiapkan semua peralatan perlengkapan keselamatan dan kesehatan kerja, dan memperhatikan petunjuk tentang persyaratan melakukan pekerjaan di atas ketinggian (lihat bagian keselamatan kerja).
- Menyiapkan semua perlengkapan untuk pemasangan kuda-kuda, antara lain: bor dan hexagonal socket, meteran, selang air (waterpass), alat penyiku, mesin pemotong, gergaji besi, palu, dan sebagainya.
Langkah 2: Leveling dan marking
- Memastikan seluruh permukaan atas ring balok dalam keadaan rata dan siku, dengan menggunakan selang air (waterpass) dan penyiku sebagai alat bantu.
mengukur dengan waterpass - Memastikan bahwa rangkaian ring balok telah mengikat semua bagian bangunan dan tersambung secara benar (monolith) dengan kolom yang ada di bawahnya.
- Memberi tanda posisi perletakan kuda-kuda (truss), sesuai dengan gambar rencana atap.
- Mengukur jarak antar kuda-kuda.
mengukur jarak antar kuda-kuda
Langkah 3: Pengangkatan dan pemasangan kuda-kuda
- Mengangkat kuda-kuda secara hati-hati, agar tidak meng akibatkan kerusakan pada rangkaian kuda-kuda yang telah selesai dirakit.
pengangkatan dan pemasangan kuda-kuda - Memastikan posisi kiri dan kanan (L-R) kuda-kuda tidak terbalik. Sisi kanan dan kiri kuda-kuda dapat ditentukan dengan acuan posisi saat pekerja melihat kuda-kuda, dengan mulut web dapat dilihat oleh pekerja. Bagian di sebelah kiri pekerja disebut sisi kiri, sedangkan yang berada di sebelah kanannya adalah sisi kanan.
- Mengontrol posisi berdirinya kuda-kuda agar tegak lurus
dengan ringbalok menggunakan benang dan lot (unting-unting) - Mengencangkan kuda-kuda dengan plat L (L bracket), dengan menggunakan 4 buah screw 12 – 14 x 20 HEX.
- Mengencangkan plat L dengan ring balok menggunakan dynabolt, dan menambahkan balok penopang sementara, agar posisi kuda-kuda tidak berubah.
- Mengulangi langkah ke-1 sampai ke-6 untuk mendirikan semua kuda-kuda, sesuai dengan posisinya dalam gambar kerja.
- Memeriksa ulang jarak antar kuda-kuda dari as ke as
(maksimum 1,2 meter). - Memeriksa kedataran (leveling) semua puncak kuda-kuda
(Apex), dan memastikan garis nok memiliki ketinggian yang
sama (datar) - Memasang balok nok.
- Memasang bracing (pengikat) sebagai perkuatan, jika bekerja beban angin. Bracing
dipasang di atas top-chord dan di bawah reng. - Bila menggunakan aluminium foil, lapisan ini dipasang terlebih dahulu di atas truss,
jurai dan rafter. - Memasang reng (roof battens) dengan jarak menyesuaikan jenis penutup atap yang digunakan. Setiap pertemuan reng dengan kuda-kuda diikat memakai screw ukuran 10-16×16 sebanyak 2 (dua) buah.
- Memasang outrigger (gording tambahan setelah kuda-kuda terakhir yang menumpu ringbalk). Pada atap jenis pelana, outrigger dapat dipasang sebagai overhang dengan panjang maksimal 120 cm dari kuda- kuda terluar, dan jarak antar outrigger 120 cm. outrigger harus diletakkan dan di-screw dengan dua buah kuda-kuda yang terdekat.
- Memasang ceilling battens dengan jarak antar masing-masing ceilling battens adalah 120 cm. Komponen ini dipasang pada permukaan bagian atas bottom chord kuda-kuda dan di-screw. Untuk pertemuan ceilling battens dengan ring balok di beri bantalan bracket yang diikat memakai 2 (dua) buah dynabolt. Fungsi ceilling battens adalah untuk memperkuat ikatan antar kuda-kuda. Jika diperlukan, sambungan memanjang ceilling battens sebaiknya tepat diatas bottom chord. Setiap sambungan harus overlap 40 cm, dan setiap pertemuan dengan bottom chord harus di-screw. Ceiling battens selanjutnya dapat difungsikan untuk menahan plafond dan penggantungnya.
Inspeksi Akhir
Karat dapat disebabkan oleh penempelan kotoran (serpihan- serpihan akibat proses pemotongan baja ringan) atau penggunaan bahan logam lain pada struktur baja ringan, seperti: pengikatan dengan kawat bendrat, pemasangan sekrup yang tidak standar, atau karena goresan benda tajam. Jika terjadi korosi pada suatu logam yang menempel pada baja ringan, maka resiko penjalaran korosi sangat besar. Oleh karena itu harus dilakukan inspeksi akhir untuk memastikan tidak ada kotoran maupun logam-logam lain yang masih menempel ataupun berada di sekitar struktur baja ringan.
Kelebihan dan Kekurangan Kuda-Kuda Baja Ringan
Kelebihan Rangka Kuda-Kuda Baja Ringan
- Tidak perlu di cat lagi.
- Bahan bangunan yang ringan sehingga tidak memberatkan struktur.
- Tidak terkena serangan rayap, hal ini berbeda dengan kayu yang punya resiko keropos dimakan rayap.
- Mutu materialnya tidak berubah-ubah, tidak melapuk karena usia lanjut.
- Proses pemasanganya cepat.
- Tahan terhadap karat.
- Lebih hemat biaya.
- Rangka baja ringan memiliki struktur atau material yang bisa disesuaikan dengan keadaan geografis sebuah daerah.
- Untuk menjaga lingkungan.
Kekurangan Rangka Kuda-Kuda Baja Ringan
- Pemilihan material memerlukan perhitungan struktur yang teliti dan kuat, karena jika ada yang salah maka atap bisa roboh total.
- Tergolong sebagai material rangka atap yang cukup mahal dibanding jenis lainya, namun keberadaan kayu yang semakin langka telah membuat baja ringan menjadi lebih murah untuk digunakan.
- Tidak bisa asal membuat rangka atap, perlu gambar kerja yang benar sehingga atap bisa dibangun dan berfungsi dengan baik.
- Dari segi tampilan arsitektur terlihat kurang bagus jika tidak didesain sedemikian rupa, oleh karena itu diperlukan plafond penutup agar langit-langit terlihat bagus.
- Tidak terjual bebas di toko bahan bangunan, jadi harus memesan langsung pada supplier rangka atap baja ringan yang biasanya menawarkan harga perencanaan
- Membutuhkan tukang tertentu yang ahli.
Itulah tadi beberapa penjelasan mengenai kuda-kuda baja ringan, maka berakhir sudah topik kita kali ini mengenai Referensi Gambar Atap dan Kuda-Kuda Baja Ringan Dalam Bentuk DWG (File AutoCAD), semoga bisa bermanfaat untuk anda. Jangan lupa subscribe halaman asdar.id di facebook, atau bagikan artikel ini kepada yang lain agar bisa bermanfaat, terimakasih.
mohopn dishare detail rencana atap baja ringan yang sedetail mungkin.