Label: Genset AutoCAD
Download Gambar Rencana dan Detail Pondasi Ruang Genset 7x4m DWG AutoCAD
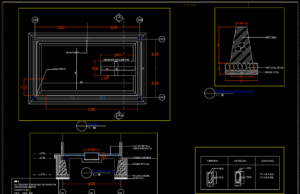
Halo rekan-rekan arsitek dan sipil, apa kabar kalian hari ini? Saya doakan semoga kalian sehat selalu. Artikel kali ini saya akan membagikan referensi Gambar...
Download Desain Ruang Genset Kolam Renang DWG AutoCAD
Halo rekan-rekan arsitek dan sipil, apa kabar kalian hari ini? Saya doakan semoga kalian sehat selalu. Artikel kali ini saya akan membagikan referensi Desain...
















