asdar.id menyediakan Member Premium Download untuk download file tanpa embel-embel iklan dan halaman, apa lagi harus menunggu timer yang begitu lama. Dengan berlangganan Member Premium Download, semua file dapat didownload dengan singkat langsung menuju ke sumbernya!, klik DISINI untuk DAFTAR atau DISINI untuk LOGIN :-) Jika ada pertanyaan silahkan hubungi Admin DISINI. Untuk cara download file Member Free Download, bisa membaca Tutorial Download yang ada dibawah Timer (halaman Safelink) saat menekan tombol download.Halo rekan-rekan arsitek dan sipil, apa kabar kalian hari ini? Saya doakan semoga kalian sehat selalu. Hari ini saya akan membagikan referensi Download Gambar Pondasi Gudang dan Kantor File AutoCAD kepada kalian secara gratis tanpa dipungut biaya apapun. Gambar ini sangat cocok untuk anda yang mencari referensi gambar AutoCAD, terlebih lagi untuk pelajar khususnya mahasiswa. File ini bisa dijadikan referensi untuk belajar gambar.
Download Gambar Pondasi Gudang dan Kantor File AutoCAD
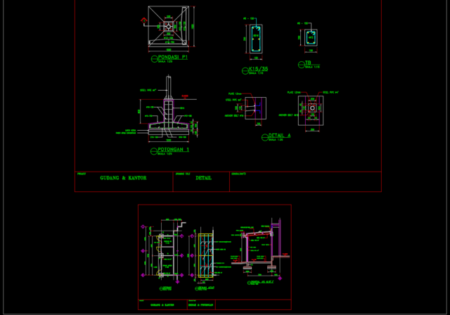
File yang saya bagikan kali ini menyajikan gambar detail pondasi yang cukup lengkap. Hanya sekedar untuk memberikan referensi pembelajaran ataupun acuan gambar kerja. Ini sangat bagus untuk pemula atau yang baru menekuni bidang arsitektur. Lihat juga gambar terkait pabrik dan gudang dibawah ini.
- Download Gambar Rencana Pabrik File AutoCAD
- Download Gambar Detail Railing Pabrik File AutoCAD
- Download Gambar Detail Tampak Potongan Pabrik File AutoCAD
- Download Gambar Tampak Bangunan File AutoCAD
- Download Gambar Futsal Area File AutoCAD
- Download Gambar Pagar Kantor File AutoCAD
- Download Gambar Water Proofing Detail 1 File AutoCAD
- Download Gambar Water Proofing Detail 2 File AutoCAD
Gambar Pondasi Gudang dan Kantor File AutoCAD adalah merupakan salah satu contoh desain gambar yang ada pada umumnya diterapkan pada pekerjaan terkait.
Gambar ini sudah dalam format .dwg yang artinya anda bisa langsung membukanya melalui aplikasi autocad versi terbaru atau paling lama versi 2007, selain itu anda juga bisa mengedit langsung untuk memodifikasi agar sesuai selera atau kebutuhan desain anda.
Silahkan didownload Gambar Pondasi Gudang dan Kantor File AutoCAD dibawah ini:
Password rar: www.asdar.id
Catatan penting: Ketika menemukan file winrar tidak bisa di extract atau corrupt, maka solusinya adalah dengan mengupdate aplikasi winrar di komputer anda ke versi yang baru, download winrar terbaru disini.
Sekian postingan singkat kali ini mengenai Download Gambar Pondasi Gudang dan Kantor File AutoCAD, semoga bisa bermanfaat untuk yang lagi belajar desain atau sekedar menjadikan koleksi referensi. Jangan lupa untuk selalu berbagi satu kebaikan dengan cara share atau bagikan artikel ini ke teman-teman di sosial media, cukup dengan klik tombol SHARE disitus ini, terimakasih!


















